前のページへ戻るボタン

東浦町 N様

自分に合ったプラン。ちょうどいい塩梅でした

自分に合ったプラン。ちょうどいい塩梅でした

renovation date

  • テイスト

    Natural

  • 工事内容

    水まわり交換・間取り変更・内装工事

  • 築年数

    20年

はじめに

弊社でリフォームしていただいた実例とともに、そのお客様へのインタビューを特別公開! 職場に近いエリアにセカンドハウスをと中古マンションを購入しリノベーションをされたN様。 担当がこのリノベーションについての経緯やご感想をお伺いしました。

担当

今回のリノベーションをフジケンリフォームにご依頼いただいたきっかけを教えてください。

N様

ネットでリフォーム屋さんを探して、値段的なところと予算内でどんな内容になるのかとかいろいろ比べて、とりあえずフジケンさんにメールしました。
最初に現地調査に見えた時に、言いやすいな…って感じがしたんです。こちらの言うことに、これは予算的に難しいですがこういうのはできます、という提案をしてくれた。対応が良くて、そして話しやすかった。

担当

気軽に言っていただける、そんな関係性が築けてうれしいです。 最初にお会いした時は現地調査というより、こうしたい、こんなことできる?といったお話を1~2時間していましたね。その時はまだどのようなリフォームをしようか考えている印象でした。

N様

そうですね。まだその時はお金をかけるか、最低限にするか迷っていましたね。

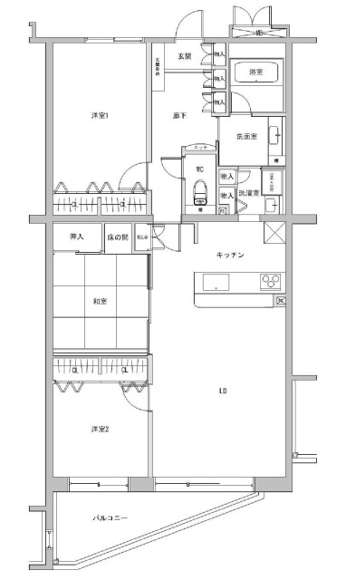
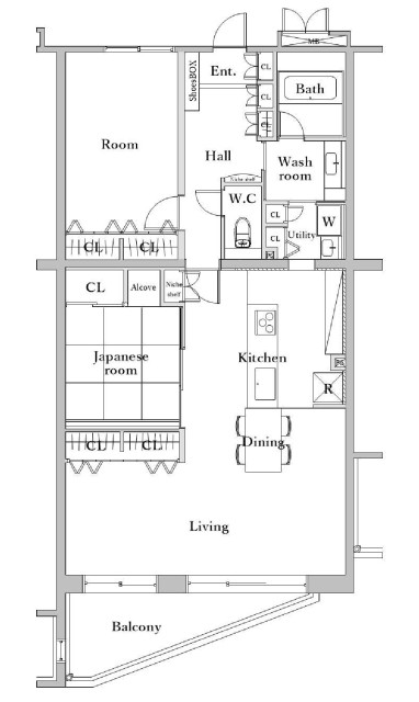
もともとあった壁を取り払い、広々としたLDKに。
もともとあった壁を取り払い、広々としたLDKに。

担当

その後私どものモデルルームにお越しいただき、こんなに変わる、こんなことができるんだ…とお話しした記憶があります。 キッチンの向きを変えるのか、洋室とリビングダイニングの壁はとるのか、壁をとるならフローリング張り替えと同時にやったほうがいいですよ...といった提案をして。

N様

見積もりも、あるパターンないパターンとか作っていただいたのでしっかり比較出来て、そこから必要ないところは削ってもらって…と。予算を少しオーバーしてしまったけど、思った形になりそうだなと見えてきて。

担当

何をやったらいくらかかるっていうのがわからないと選択しようがないですよね。私どものお見積もりはその点わかりやすくしているので、予算調整がしやすいかと思います。 他の会社とも比較されたんですか?

N様

1店だけ、完成見学会に行きました。そこは断熱から配管の交換までしっかりリノベーションするところで、予算的にも乖離があってちょっと無理かなと。
実際リノベーションして暮らしてみても寒さを感じないし、結露もないし。予算と合っていたとしてもそこまでする必要はなかったかなと思います。

担当

そうなんですよね。マンションは戸建てと比べて暖かいので、寒さは窓断熱でよっぽどカバーできるし、ここはつくりはもともといいので、そういった部分を活かした提案をしました。 わたしたちが心掛けているのは、お客様の暮らしやお話をしっかりお聞きして、内容も金額もやりすぎではない、お客様にちょうどいいリノベーションの提案なんですよね。

N様

そう!そう!ちょうどいいリノベーション!
打ち合わせのたびにこちらの要望や変更をしっかり反映してくださって。本当に、ぴったりで無理のないね。ちょうどいい塩梅でした。

担当

非効率かもしれないですけど、そのお客様一人一人にあわせて全部プランを作っています。だから打ち合わせも何度もお時間いただいてしっかりやらせていただきました。

LDKでお話を聞かせていただきました。
LDKでお話を聞かせていただきました。

担当

今回のリノベーションに関しては、もともとの建具など状態が良くて活かせる部分は活かすようにしたんですがいかがですか?

N様

そうですね。収納の扉とかいいところは活かしてもらって。よく見ないとわからないくらい。築20年経っていると、クロスを変えるだけで最初の時とイメージがガラッと変わって、“おおっ“て。非常にかっこよくなりました。
あと導線がいいですね。普段はもう開けっ放しで、回遊する感じです。キッチンからランドリースペース、トイレとぐるっと。キッチンの段差も最初は不安だったんですけど、躓くこともなく、気にならない。

担当

キッチン部分は床を上げざるをえなかったので、しっかり段差をつけ床材も変えたことでアクセントになったのがよかったのでは。 キッチン横の段差部分にコンセントをつけましたね。今お使いのテーブルでちょうど隠れるのも良いですね。このキッチンとダイニングテーブルの位置関係、配膳や下膳なども導線的にいいのかなと思っているのですが。

N様

本当はこのコンセント、料理のために使おうかなと思ったのですが、この位置だと料理だけでなくパソコンのコンセントをつなげたり仕事にも使えて使い勝手はいいですね。つけてよかったです。この位置だと、ちょっと頑張って冷蔵庫開けちゃうとか、動かなくて出来ちゃう(笑)。ラクですよ。

洗面から。開け放せば心地よい風が通り抜けるそう。
洗面から。開け放せば心地よい風が通り抜けるそう。
玄関スペースからもLDKと洗面にアクセスできます。
玄関スペースからもLDKと洗面にアクセスできます。
小上がりのキッチン。正面のアクセント部分にコンセントを配置しました。
小上がりのキッチン。正面のアクセント部分にコンセントを配置しました。

担当

キッチンはトクラスでしたよね。使ってみていかがですか?

N様

簡単なものや一回で食べきれるものを作る程度ですが。
見た目もいいですし、広いし収納もたくさんある。高さも私に合わせて作ってもらったのでとても良いです。コンロとIHで検討していて、安全のためにIHにしようと思っていたんですけど、火力が強い分料理の味で比べるとガスにして正解でした。

担当

LDKの床は最初から無垢フローリングへの交換をご希望されてましたよね。

N様

節の模様が気になることもありますがそれが無垢の味なんですよね。肌触りも良くて夏は素足で過ごせるし、気持ちがいい。

担当

歩いていて楽しいですよね。そして天井はN様ご自身が後から購入した照明ですね。

N様

ペンダントライトは自分でつけました。このレールなら簡単につけられるし、位置を変えたり向きを変えたりも自分でできるって知って。便利ですね、イメージに近い感じになって良かったです。

担当

生活する中で、ソファやテーブルの位置を動かしたくなる時はあると思うので、照明も自分で簡単に調節ができるっていうのはいいですよね。お好きなテイストやこうしたいと言う要望ををしっかり共有いただけたからこそです。

Before
Before
After
After

担当

もう住まわれて1か月ですが、生活は変わりました?先ほどまでこちらでお仕事をされていたようですが。

N様

快適です。居心地もいいし集中できるし。
通勤が楽になりましたね。本宅も好きなんですけど。徒歩圏内に何でもあるので生活はしやすいかな。朝はちょこちょこウォーキングします。在宅勤務の時は通勤時間があくのでその分1時間くらい。

担当

喫茶店やカフェなんかも周りにたくさんお店があっていいですよね。

N様

でも、最近はここがあるからいいかなってなりました。景色もいいし、自分の好きなテイストで居心地もよいし。

担当

たしかに。私もカフェに行きますが、それって居地良い空間で過ごすため。でも自宅がご自身のお好きな空間でしたら、カフェに行かずとも素敵な時間が過ごせますよね。

リビングの壁には間接照明も。空間を広くみせるだけでなく、落ち着きのあるくつろげる雰囲気に。
リビングの壁には間接照明も。空間を広くみせるだけでなく、落ち着きのあるくつろげる雰囲気に。

担当

お正月にはご親族が集まられたとか。

N様

食べるものもちょこっと作ったり、近くのショッピングモールでお寿司とか買ってきて。本当はここにラグを敷きたいんだけどまだ用意していないので本宅から持ってきたラグをとか敷いて。
このレイアウトだと会話が途切れないし、席を立っても洗い物や運ぶの手伝ってくれたりとか、みんなに目が届きやすい。子供が走り回っても大丈夫でした。
あと、広っ!って皆驚いていました。いいなぁ、って。

担当

確かにマンションっていうとそんなに部屋が広いイメージはないですよね。 楽しそうな風景がうかびました。これから毎年ここで集まることになりそうですね!

おわりに

本宅も大好きで全く不満はないんだけれど、こちらも住みやすくてこれからの生活の幅が広がったわと優しく微笑むN様。 N様の生活をより豊かにする手助けができたことが何よりも嬉しく、その温かいお言葉に胸がいっぱいです。