テニスコートのある広大な敷地
ナチュラルな室内空間

コープ野村新安城B棟
コープ野村新安城B棟610号室
1,980万円
ローンの目安:27,487円 / 月 安城市今池町二丁目33番地1 名鉄名古屋本線「新安城」駅まで徒歩約8分
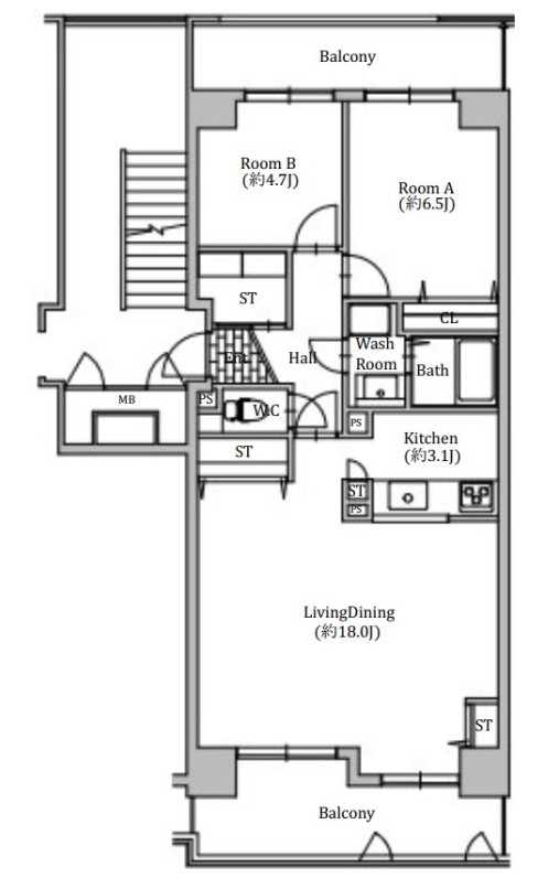
  • 2LDK    専有面積 70.97㎡ / バルコニー面積 17.01㎡
  • ペット飼育:可(飼育規約有)
    ※1住戸当たり小鳥は3羽以下とし、それ以外のペットは1頭以下。

間取り

間取り

ナチュラルテイストの室内

明るい色味で統一された室内空間。自然光が入り、さらに明るいお部屋に。窓を開ければ風が吹き、心地いい時間が流れます。(家具・雑貨はイメージです。)
ナチュラルテイストの室内

リビングが見える
ホワイトのキッチン

リビングが見えるキッチン。外の景色も見えるので開放感抜群です。家族の様子を見ながら料理することができます。
リビングが見える
ホワイトのキッチン

落ち着くバスルーム

清潔感のある落ち着くバスルーム。十分な広さで一日の疲れをゆっくり癒すことができます。
落ち着くバスルーム

広大な敷地

公園やテニスコートのある広大な敷地で安心感があります。バルコニーから緑が見え、気持ちが安らぎます。
広大な敷地

ローンについて

借入額
1,980万円
ローンの目安
27,487円/月

【返済例概要】

  • 頭金:0万円
  • 借入金額:1,980万円(ボーナス返済割合50%)
  • 月々の返済額(年12回):27,487円
  • ボーナス月返済額(年2回):192,426円
  • 金利プラン:変動0.9%
  • 返済期間:35年
  • ※2026年3 月現在の金利で算出しております。※実際の金利はご融資が実行された時点のものが適応となり、今後の金利変動によって記載の金利・返済例概要と異なる場合がございます。※上記支払い例では繰り上げ返済などは考慮しておりません。
  • 【住宅ローン概要】
    ●取扱金融機関:愛知銀行 ●融資限度額:100万円以上1億円以下(保証会社によって借入金額が異なります)。●利率:変動金利年0.9 %●返済期間:2年以上40年以内(保証会社によって借入期間が異なります)。●返済方法:元利金等毎月返済・元金均等毎月返済より選択(ボーナス払い併用可)●事務取扱手数料:22万円(税込)もしくは借入金額×2.2%(税込)
  • ※お申込みに際しては所定の審査があります。審査の結果によってはご希望に添いかねる場合がありますのでご了承ください。※物件引渡時から発生する諸費用・管理費・修繕積立金・インターネット使用料等は含まれておりません。所有者様に別途負担が発生します。※他の支払返済のプランもございます。詳しくは物件販売係員までお尋ねください。
この街の雰囲気

安城市今池町二丁目33番地1

周辺環境について

暮らすほどに心地よさを感じる安城市

安城市は、名古屋から電車で30分ほどの距離にありながら、どこかのんびりとした時間が流れる街です。まちの中には田畑や緑が点在し、季節の移ろいを身近に感じながら暮らすことができます。休日には、花と緑に囲まれた「デンパーク」や、子どもたちが元気に遊べる「安城公園」など、家族で過ごせる場所が豊富。日常の中に、自然とリラックスできる時間が散りばめられています。
一方で、JRや名鉄の路線が通り、名古屋方面や三河各地へのアクセスも良好。幹線道路や高速道路も近く、通勤やお出かけに不便を感じることはありません。買い物施設や医療機関、学校もそろっており、子育て世代からシニア世代まで安心して暮らせる環境が整っています。
都会の便利さと、田園のやさしさ。その両方をバランスよく味わえるのが、安城市の大きな魅力です。

この街の暮らし

  • 【ららぽーと安城】
安城市の新しいランドマーク的な商業施設です。200以上の店舗が集まり、ショッピングを楽しめます。屋上には様々な遊具あり、お子さんも含め家族全員が楽しめる施設になっています。

    【ららぽーと安城】
    安城市の新しいランドマーク的な商業施設です。200以上の店舗が集まり、ショッピングを楽しめます。屋上には様々な遊具あり、お子さんも含め家族全員が楽しめる施設になっています。

  • 【安城市スポーツセンター】
バスケットボールや水泳、筋トレまで幅広く対応。子どもから高齢者まで世代を超えて利用できます。アクセスもしやすく、日常の運動から本格的な競技まで楽しめるスポーツ施設です。

    【安城市スポーツセンター】
    バスケットボールや水泳、筋トレまで幅広く対応。子どもから高齢者まで世代を超えて利用できます。アクセスもしやすく、日常の運動から本格的な競技まで楽しめるスポーツ施設です。

  • 【アンフォーレ】
音楽・演劇・映画などの多彩な公演やイベントを開催し、市民の文化活動を支援しています。また、ギャラリーや展示室も併設されており、アートや地域の歴史に触れることができます。

    【アンフォーレ】
    音楽・演劇・映画などの多彩な公演やイベントを開催し、市民の文化活動を支援しています。また、ギャラリーや展示室も併設されており、アートや地域の歴史に触れることができます。

outline

物件概要

住所
安城市今池町二丁目33番地1 (→Google Map)
専有面積
70.97㎡
バルコニー面積
17.01㎡
用途地域
第一種住居
築年月
昭和62年(1987年)7月
総戸数
185戸
構造・階層
SRC造11階建6階部分
権利形態
所有権
管理費
6,420円/月
修繕積立金
10,830円/月
駐車場

敷地内駐車場:

6,000円 9,000円 /月

空有

2025年9月現在

※1住戸1台有

駐輪場

駐輪場:

50円 /年

登録料(200円)

現況
空室
入居時期
相談
電気
中部電力
水道
公営水道
排水
公共下水
ガス
都市ガス
交通
名鉄名古屋本線「新安城」駅まで徒歩約8分
学区
今池小学校 徒歩約6分/安城北中学校 徒歩約25分
町内会費
町内会に詳細ご確認ください。
管理会社
日本ハウズイング株式会社
管理形態
全部委託(日勤)
ペット飼育
可(飼育規約有)
※1住戸当たり小鳥は3羽以下とし、それ以外のペットは1頭以下。